Ga direct naar de hoofdinhoud
RADIOCOM.be
Gratis verzending vanaf 150€ excl. (BeNeLux) - -
Alle prijzen zijn EXCLUSIEF btw !
RADIOCOM.be
E-SHOP RADIOCOM.BE
WALKIE TALKIE & TOEBEHOREN
PMR446 ZONDER VERGUNNING
446 KITS
POC met SIM-Kaart
DIGITAAL VHF/UHF
Jachtradio's
HYBRID X
TETRA ALTERNATIVE 4G 5G
CB RADIOS
AUDIO - TOEBEHOREN
HEADSET COMMUNICATORS
LADERS - CHARGERS
BATTERIJEN
DRAAGTAS & CLIPS
ANTENNES VHF-UHF
DUPLEX RADIOCOM
PERSONAL SECURITY SOS
DODEMAN GSM
SAFETEL
TWIG SOS DEVICES
TOA SOS-KEY
DODEMAN PAGING
DODEMAN RADIO
GSM VERSTERKER
WHAT DO I NEED ?
Connectiviteit , waarom ?
Wifi or Mobile
DAS ANALOGUE
DAS DIGITAL
SELECTIVE REPEATERS
LINE AMPLIFIERS
SELECTIVE DAS UTP/FIBER
INDOOR ANTENNAS
Outdoor antennas
DAS SYSTEM ACCESSORIES
COAX - CONNECTORS
GSM ROUTER MODEMS
FWP-FCT SIMBOX
ATEX - Ex - COMMUNICATIONS
GIDSEN SYSTEEM
INTERCOM
PAGING
TRACK & TRACE -IOT
NEW ARTICLES
Wie is ESSEC ?
TE HUUR - RENT - A LOUER
CONTACT
JOBS
Account
Zoeken
0
Verlanglijst
0
Winkelwagen
Nog vragen ?
E-SHOP RADIOCOM.BE
»
CELFI C41 Smart Home Repeater
CELFI C41 Smart Home Repeater
€ 995,00
In winkelwagen
Artikelnummer:
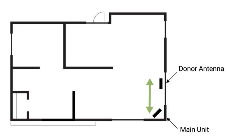
No holes
Indoor Donor Antenna , mountable on the inside window
Selective solution (1 operator)
Ready to use solution
Including Donor-antenna, Repeater & 10m coax
Delen
Deel
Share
Delen